

Cloud 9 Smoke & Vape Co.
Aligning Zoning With Longstanding Use
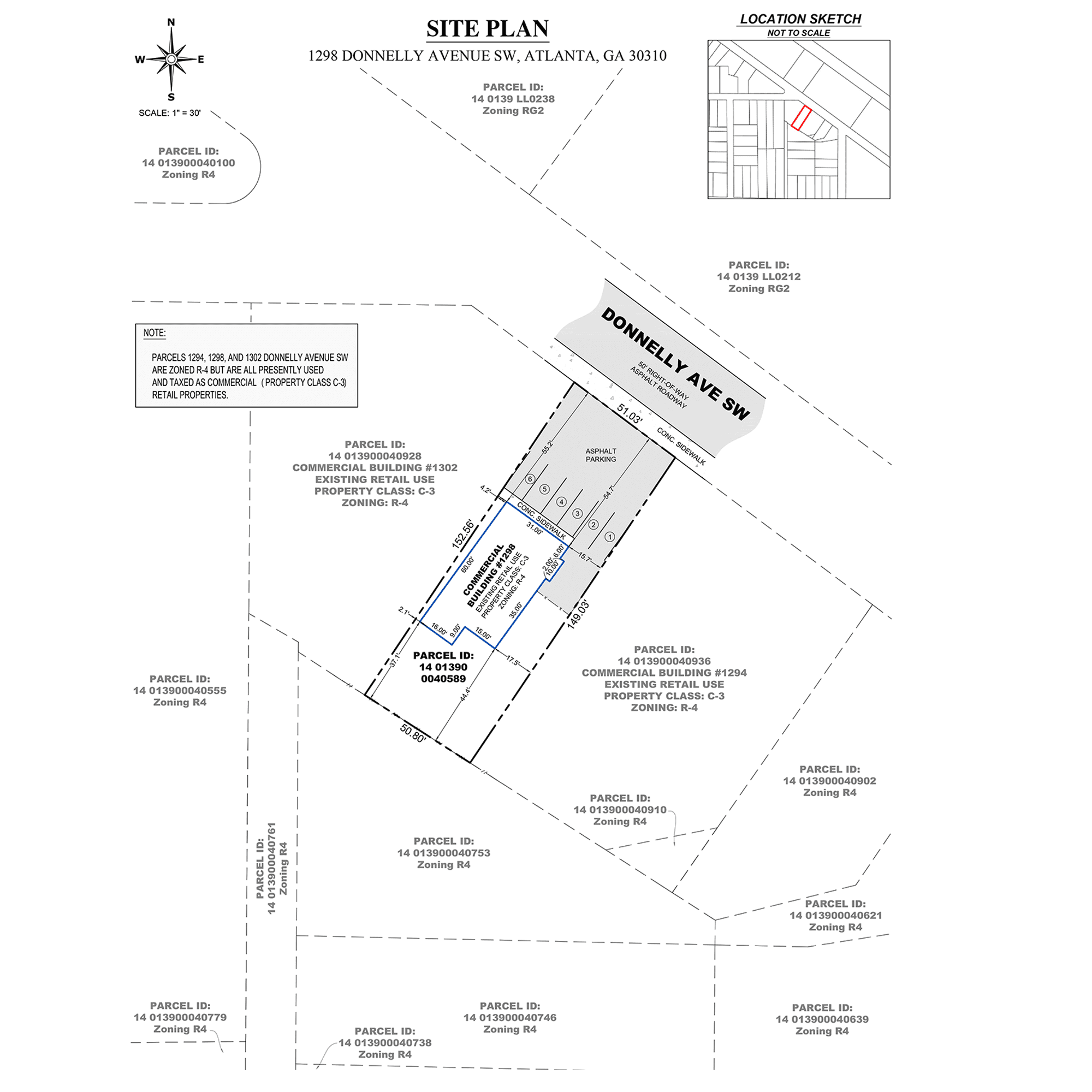
The Cloud 9 Rezoning project focuses on correcting a long-standing zoning discrepancy for a neighborhood-scale commercial property in Atlanta’s West End. Although the site has historically operated as a small retail establishment, the parcel remained zoned R-4 residential - creating a mismatch between its official zoning and its actual use. Our team prepared a comprehensive rezoning package to reclassify the lot to C-1 Neighborhood Commercial, ensuring alignment with the existing building, surrounding context, and the City’s planning policies.
Situated steps from the BeltLine Westside Trail, the site sits within a mixed fabric of residential homes and small commercial nodes. The rezoning supports ongoing corridor revitalization, preserves existing investment, and enables the new Cloud 9 retail concept to operate legitimately and without disruption. The resulting C-1 designation brings the parcel into full compliance while reinforcing Donnelly Avenue as a walkable, neighborhood-serving commercial corridor.
Location
Atlanta
Size
1745
Year
2025






