

John Wesley Dobbs: As-Built Documentation
Legalizing an Existing Structure Through Technical Precision
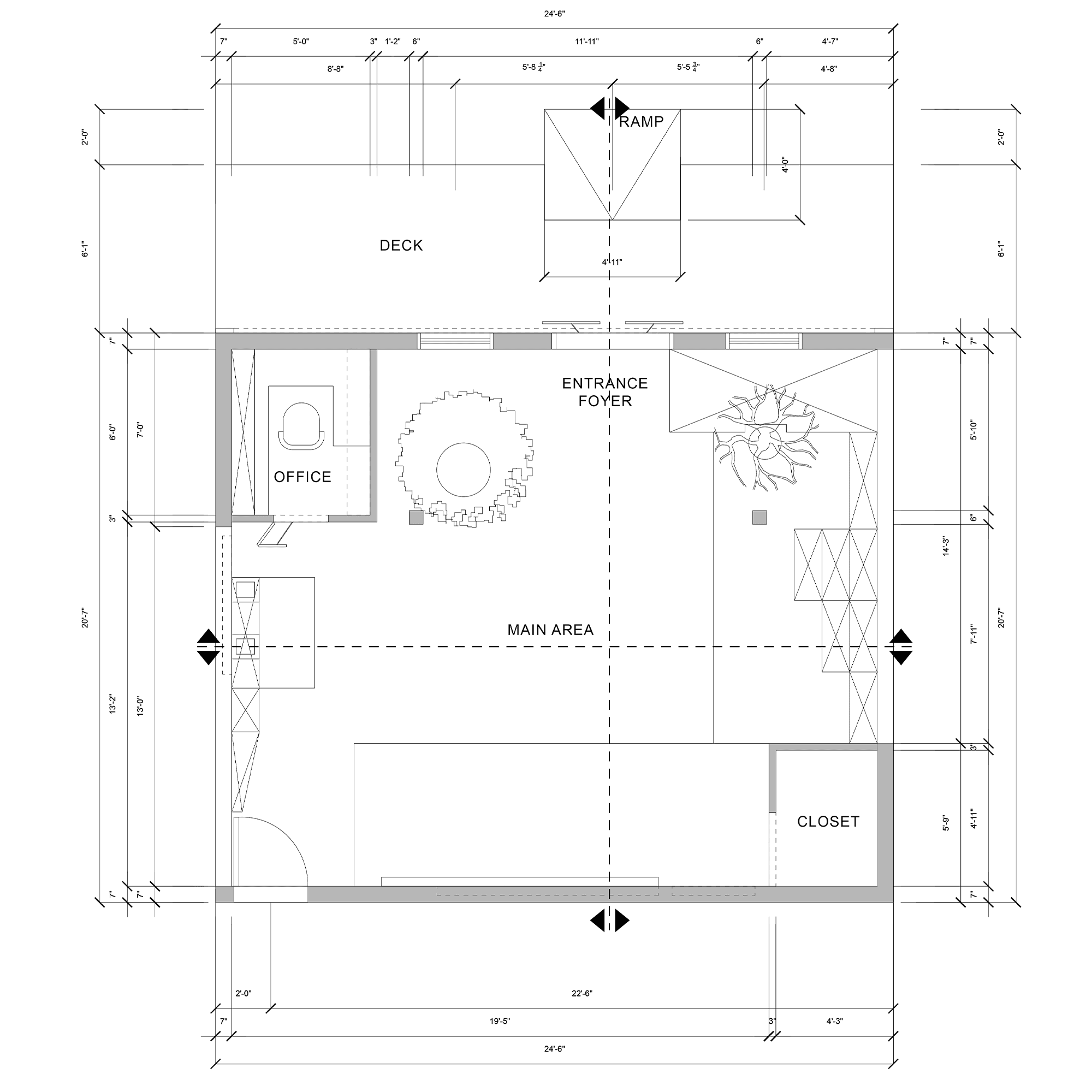
At 684 John Wesley Dobbs Avenue, our team was engaged to transform an undocumented accessory structure into a fully verified, code-compliant architectural record suitable for retroactive permitting. The small wood-framed enclosure—built without permits by a former tenant—required complete as-built documentation to resolve a stop-work order issued by the City of Atlanta.
Working within the BeltLine Overlay and MRC-3-C zoning context, we measured, photographed, and digitally reconstructed the structure to accurately capture its dimensions, materials, and construction conditions. No new design work was proposed; instead, the focus was on delivering a coordinated drawing set that met professional permitting standards, including floor plans, elevations, roof plans, interior sections, and structural documentation prepared by our engineer.
The result provides the Owner with a clear, verifiable architectural record that brings the enclosure and deck into compliance while supporting the site’s broader regulatory framework—an essential step in resolving the property’s permitting issues and securing approval from the City of Atlanta.
Location
Atlanta
Size
661
Year
2025






