

Pomona Basement
Compact Living, Thoughtfully Reimagined
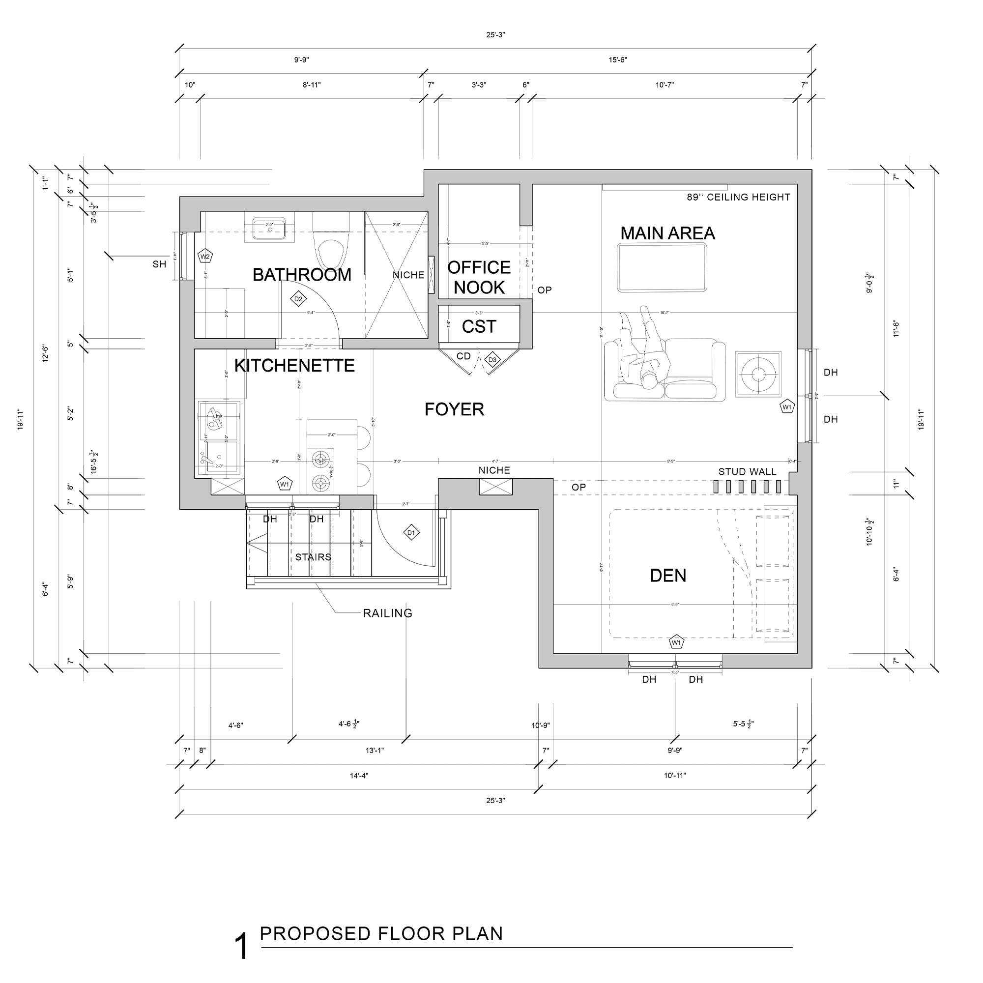
The Pomona Basement project transforms roughly 400 square feet of semi-finished space into a bright, efficient, and highly adaptable living environment. Designed as a self-contained suite, the layout incorporates a full bathroom, a compact kitchenette, a sleeping den with a Murphy bed, a dedicated office nook, and a comfortable living area—each space shaped to maximize utility without sacrificing comfort.
A partial stud wall subtly defines the sleeping zone, allowing the den to function as both a bedroom at night and an office during the day. The kitchenette is designed with integrated appliances and a small island, forming a practical hub for daily use. A full bathroom with a spacious shower and stacked washer/dryer offers convenience, while built-in niches and refined finishes elevate the interior character. Despite its limited size, the project delivers a cohesive, modern, and flexible lower-level dwelling that feels open, organized, and fully connected to contemporary living needs.
Location
Atlanta
Size
400
Year
2025








